
名稱:C2F/VSSJAF型雙法蘭傳力接頭
雙法蘭傳力接頭功能介紹
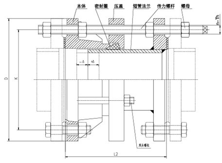
松套傳力接頭是在法蘭松套補償接頭的基礎上增設法蘭短管及傳力螺桿而成,次類型的補償接頭與松套補償接頭和松套限位補償接頭不同的是它的補償量是指在安裝及拆卸過程中的調節量,一旦將所有的螺母擰緊,它是剛性連接的,可以傳遞軸心力,從而保護閥門、泵等設備。
雙法蘭傳力接頭適用范圍
C2F/VSSJAF型雙法蘭傳力接頭適用于輸送海水、淡水、冷熱水、飲用水、生活污水、原油、燃油、潤滑油、成品油、空氣、煤氣、溫度不高于250度的蒸汽和顆粒粉狀等介質。
雙法蘭傳力接頭安裝簡要說明:
C2F/VSSJAF型雙法蘭傳力接頭適用于兩邊均與法蘭連接的管道中,安裝時調整產品兩端與法蘭的安裝長度,對角依次均勻擰緊壓螺栓,使其成為一個整體,并有一定的位移量,方便安裝維修時,根據現場尺寸進行調整在工作時,可以把軸向推力傳遞至整個管道。

PN0.6MPa的雙法蘭傳力接頭的基本尺寸 單位為毫米
485 495
公稱通徑
DN管子外徑
Dw法蘭連接尺寸
總長
L安裝尺寸
伸縮量
重量/
kg
法蘭外徑
D螺栓孔中心
圓直徑D1螺栓孔
n/個
do
min
max
65
76
160
130
4
420
180
40
11.8
80
89
190
150
18
460
13.5
100
114
210
170
18.6
125
140
240
200
8
23.8
150
168
265
225
30.4
200
219
320
280
36.9
250
273
375
335
12
49.6
300
325
440
395
22
445
195
50
61.5
350
377
490
445
79.3
400
426
540
495
16
91.2
450
480
595
550
104.1
500
530
645
600
20
123.2
600
630
755
705
26
510
465
215
169.8
700
720
860
810
24
208.9
800
820
975
920
30
540
380
320
60
346.I
900
920
1075
1020
380.6
1000
1020
1175
1120
28
438.8
1200
1220
1405
1340
32
33
580
400
340
646.7
1400
1420
1630
1560
36
36
843.6
1600
1620
1830
1760
40
600
410
350
1189.7
1800
1820
2045
1970
44
39
1394.8
2000
2020
2265
2180
48
42
660
430
370
1665.5
2200
2220
2475
2390
52
2056.7
2400
2420
2685
2600
56
2350.1
2600
2620
2905
2810
60
48
750
490
410
80
2720.4
2800
2820
3115
3020
64
3053.2
3000
3020
3315
3220
68
3460.3
3200
3220
3525
3430
72
3912.6
上一篇:【VSSJAFC型可拆式雙法蘭傳力接頭】
下一篇:【CF型單法蘭松套傳力接頭】

豫公網安備 41910102000522號
地址:鞏義市永安路南段 0371-64393352 64580820 傳 真:0371-64031200 手 機:15903663076